(IN) BETWEEN HOUSE
COMPLETED
FUNCTION: Single Family Dwelling
SITE AREA: 119.7 sqm
FLOOR AREA: 274.34 sqm
AWARDS: SIA Design Awards 2025 - Conservation (Merit)
Situated within the historic Peranakan enclave of Emerald Hill, this project reinterprets the traditional Chinese Baroque shophouse as a contemporary residence that seamlessly integrates heritage conservation with modern family living. The site’s distinctive duality-an intimate residential precinct framed by ornate, colonial-era facades, juxtaposed against the dynamic commercial thoroughfare of Orchard Road-provided the conceptual foundation for a design approach predicated upon reconciliation of historic typology and spatial fluidity.
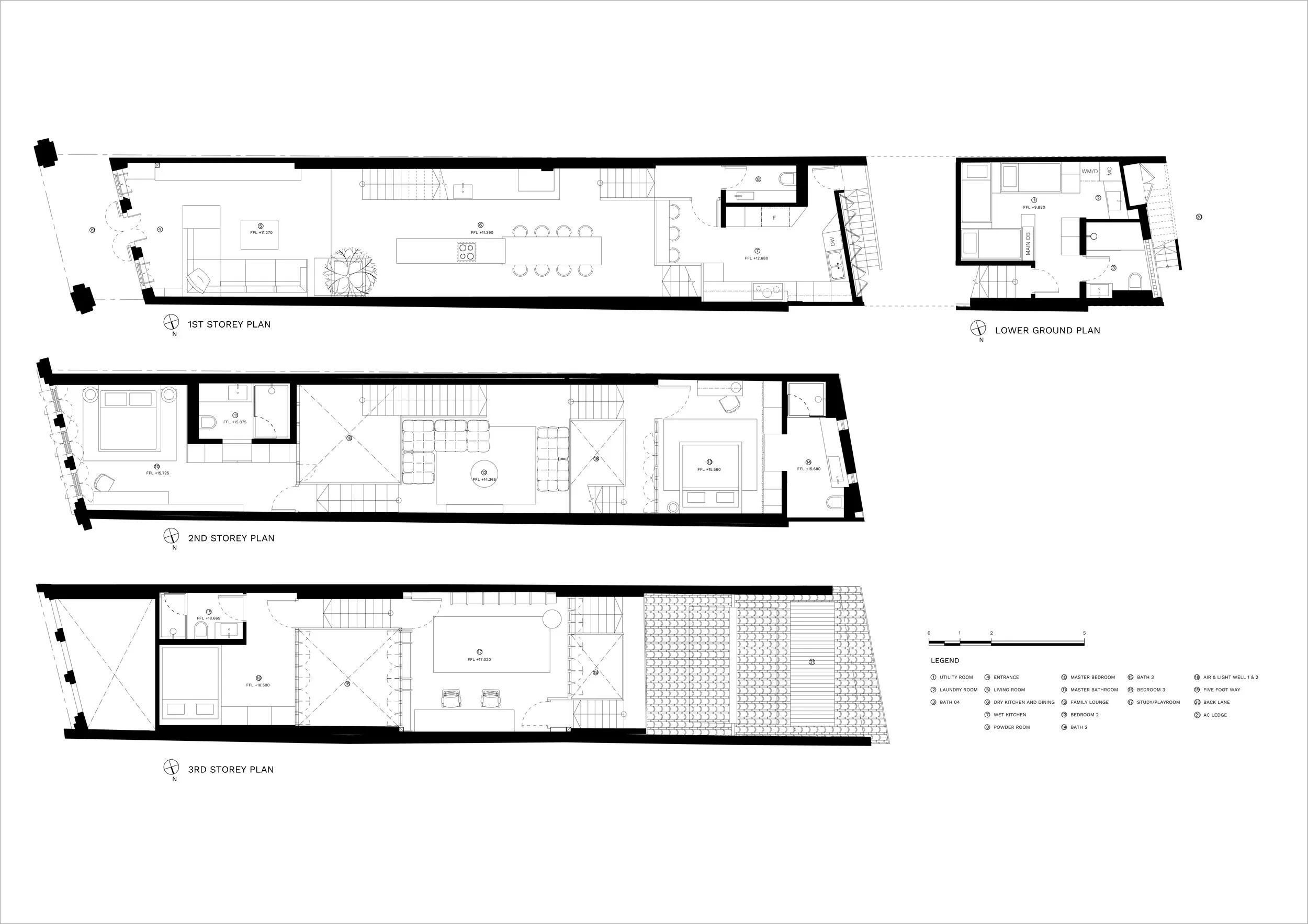
Central to the scheme is the transformation of the conventional dog-legged stairwell into a singular, volumetric conduit of communal interaction.
Removal of the existing staircase and insertion of a continuous, floating platform system established a series of interlinked mezzanine levels, facilitating unobstructed visual and functional connectivity between the private front and rear quarters. This typological intervention not only resolves the fragmented spatial sequence inherent to the shophouse typology but also leverages two airwells-augmented by a discrete artificial skylight-to introduce balanced daylighting and natural ventilation throughout the longitudinal plan.
In addition, the first storey benefits from an open plan layout which allows one to be able to fully see through and embrace the length of the site (unique feature in shophouses). In doing so it exaggerates the depth of the narrow shophouse. In combination, the sense of confinement and disorientation that one experiences walking into the existing shophouse is changed to one that celebrates openness and exploration.
The smooth transition from the bustling modern streetscape along Orchard Road into a quiet sanctuary steeped in tradition and peppered with contemporary elements is exemplified in a few ways.
Firstly, we attempt to draw in the appearance of the outdoors by designing the facades facing the airwells with the same timber panelled casement windows, “mirroring” the external fenestration. This vertical void, calibrated to reflect the rhythm of original timber casement fenestration, extends the Peranakan decorative motif into the interior, reinforcing the dialogue between old and new.
Secondly, the living room is reimagined as the “forecourt” of the property, forming a threshold at the first airwell between the living and dining space. Framed by warm teak and lush landscape, this transition is marked by material selection – beige Ceppo, a stone with large granular character commonly used in external landscape for the living room floor, and Pietra Da Torre, a stone with similar characteristic, that extends inward to form the dry kitchen islands, thereby complementing existing Chenghai floor joists, and granite corbels. This provides a slight contrast to the elevated Perlado Grigio of the dining room floor, signifying a transition to a semi-private domain.
Choice of material used in this project is central to the brief of the project. We have chosen to work with largely natural materials to complement the existing timber palette of the shop house - namely timber and stone varieties of various finishes for the hard furnishing; and leather and natural fabric for soft furnishing.
The owners took to the original timber interiors and greatly appreciated the feel that tropical hardwoods lent to the space. This formed our starting point for the project’s material selection. In keeping with the original and historic material palette, architectural elements that form the frames and shells of the space (floors, beams, joists, staircases, interior facades) were expressed in teak and chengal to complement historic elements that exist originally in the space. Of note, teak veneered marquetry was designed for the master bedroom wall panels fronting the first airwell to signify the head of the house, an emphasis often employed in Peranakan ornamentation.
Introduced elements within each rooms, such as the carpentry, were expressed in a wider selection of timber types - from natural oak in the kids bedrooms to dyed veneers in the master bedroom, creating visual interest without resorting to replication, yet still maintaining a consistent timber palette
Rising above the ground, stone is restricted to the bathrooms, where finer marble varieties such as Patterned Breccia Viola, Honed White Pearl and polished Breccia Capraia create an opulent yet relaxing space to refresh and unwind after a long day. The localized areas of stone also signifies the divide between the dry and wet areas.
Ultimately, the design exemplifies a synergy of contextual analysis, typological strategy, and conservation ethics, resulting in a residence that embodies the Peranakan heritage of Emerald Hill while accommodating the spatial and sociocultural demands of contemporary family life.
Image Gallery
CREDITS
TEAM MEMBERS: Pan Yi Cheng, Ling Shi Yin Daniel Chia, Liao Chien-I, Teo Xiao Wei
PHOTOGRAPHY: Finbarr Fallon, FrameSG
CARPENTRY: Plankworkshop
ROOF RESTORATION: Towner Construction
FURNITURE/DECORATIVE LIGHTING: SPACE, XTRA
ART: Gallery Nawei
LANDSCAPING: Out of Stalk Edition
STUCCO: Wall Studio
AUDIO SYSTEM: AOE
ARCHITECTURAL LIGHTS: Light Basic Studio
 
                         
                 
                 
                 
                 
                 
                 
                 
                 
                 
                 
                 
                 
                 
                 
                 
                 
                 
                 
                 
                 
                 
                 
                 
                 
                 
                 
                 
                 
                 
                 
                 
                 
                 
                 
                 
                 
                 
                 
                